Monuments Historiques
Cachan (94) - 2011 - estimation étude de faisabilité 9.700.000 € HT
Maître d'ouvrage : Ville de Cachan - Mandataire : Aurélie Rouquette, architecte - Co-traitants : Delphine Vermeersch, architecte du patrimoine /Mickaël Courtay, architecte ENSAIS / Rincent BTP structure / INEX fluides / DAL économiste / ARP Programmiste / Panorama paysagistes - Programme : étude de restructuration 3.900 m2 - Spécificité : édifice inscrit MH - Mission : diagnostic architectural, technique et patrimonial / Diagnostic accessibilité PMR / Diagnostic sécurité incendie / Scenario d'intervention / Esquisse
Architectes Mathon et Chollet, associés à l'architecte municipal Chaussat.
L'hôtel de ville est inauguré le 30 mars 1935

Plan de faisabilité, rez-de-chaussée bas

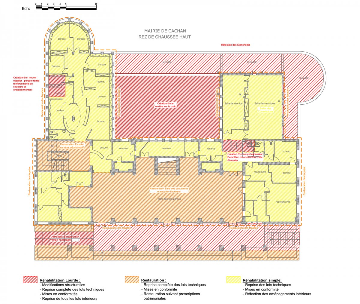
Rez-de-chaussée haut, les types d’interventions

Le Bâtiment vu depuis le square de la Libération en 1970

Le Bâtiment vu depuis le square de la Libération en 2010





La salle des mariages en 2010